Hotel Costa da Morte | Fisterra

Aprovechamos que las obras del próximo hotel en Fisterra están a punto de terminar y abrir sus puertas a finales de este mes de Mayo para enseñaros un poquito sobre el último proyecto hotelero de nuestra oficina de arquitectura en Costa da Morte.

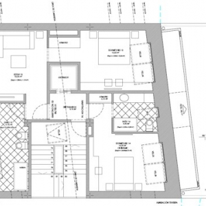
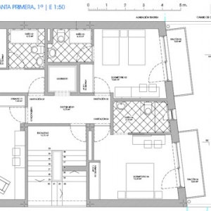
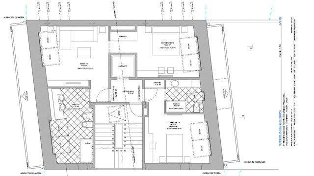
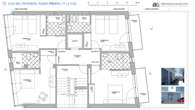
El nuevo edificio de planta sótano, baja, 3 plantas y bajo cubierta ocupa la superficie de una antigua edificación destinada a garaje de planta baja con sótano que se aprovechó éste último reforzando la estructura y adaptándolo para ubicar el nuevo uso y las nuevas instalaciones del ascensor y las escaleras así como la nueva alineación impuesta desde el Concello.

El hotel dispondrá de 14 habitaciones con baño (12 dobles, 01 adaptada y 01 individual), recepción, estar-comedor, terraza, zona wi-fi y aparcamiento exterior; todo ello con las prestaciones y los estandares más exigentes que requiere un establecimiento actualmente de estas características.

En la Planta Sótano se ubican todas las instalaciones de climatización, calefacción, lavandería y almacenes. En Planta Baja está el acceso, la recepción, el comedor, la terraza y las zonas comunes como la escaleras y el ascensor del hotel. En Planta Primera, Segunda y Tercera se ubican todas las habitaciones principales, a razón de 4 por planta, dos por cada fachada, dejando para la Planta Bajo Cubierta las 2 últimas habitaciones.

El hotel “Costa da Morte”, que así se va a denominar, está pensado y diseñado desde un punto de vista práctico y útil, como si de un hotel urbano se tratase, donde el huésped se puede sentir como en su propia casa y así poder descansar si viene de hacer el camino de Santiago de Compostela a Fisterra como si viene con la intención de visitar y disfrutar de toda esta zona de la Costa Gallega desde el centro de la villa de Finisterre pues el establecimiento hotelero está ubicado en la misma calle que nos conduce al famoso Faro pasando por la iglesia de Santa María das Areas.

 

Rúa Alcalde Fernández, 16. 15155 FISTERRA | Costa da Morte  42º 54´ 19´´ N   09º 15´52´´ O

AÑO PROYECTO 2017

Esta web utiliza cookies para mejorar la experiencia del usuario. Si continua navegando consideramos que acepta el uso de cookies. OK Más información